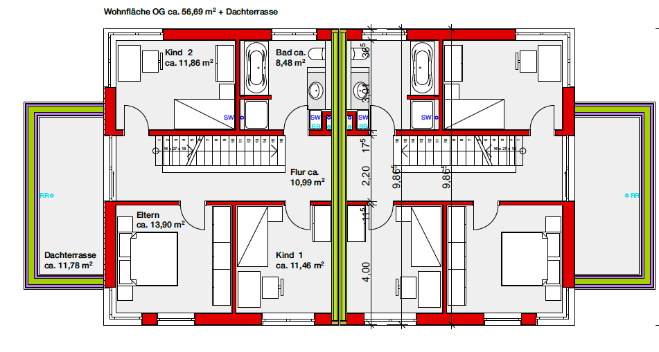
Dopplehaushälften Z4 und Z4 b
VERKAUFT
Lichtdurchflutete moderne Doppelhaushälften mit Südausrichtung
Schlüsselfertiger Massivbauweise als KfW55
Hinter jedem erfolgreichen Produkt steckt eine Menge Arbeit, egal in welchem Geschäftsbereich. Die Entwicklung eines erfolgreichen Projekts erfordert nicht nur eine gute Intuition, sondern auch Recherche und Planung.
Für unsere zukünftigen Bauherren haben wir hier ein schönes Projekt 6 Doppelhaushälften geplant in ausgezeichneter ruhigen und sonnigen Lage. Die Häuser bieten wir Bezugsfertig an inkl. Terrasse. Nicht enthalten sind die Aussenanlagen, Parkplätze sowie Möbel etc.
Es liegt ein vorläufiger Energieausweis vor nach EnEV vor. Ausstellungsdatum 07306 9252610.



